新闻动态

整装作品 | 滨湖万丽258m²,法式轻奢新主张

2021-06-26
烟台装修哪家好】轻奢风不是一味的高级,而是带着情感与姿态,在家里的每个角落注入生活痕迹,加上屋主的一点品位、一点趣味,这些娓娓道来的细密温情,打造出一个家最独特的动人气质!【烟台大钦整装


Location丨项目地址:滨湖万丽
The project area | 规划面积:258m²
Design style | 设计风格:法式
Design units | 设计团队:耳东升设计工作室
Chief designer丨整装规划师:耳东升
Assistant designer丨深化设计师:崔娜
Contractor丨承接单位:大钦整体家装
Decorate date丨开工时间:2021/5

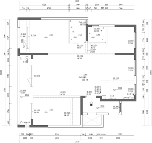
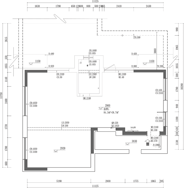
01 平面方案

一层:保留三个卧室,将南面卧室、客厅空间分别向南阔移,增添足够活动空间及储物空间;根据主人的日常生活习惯,将厨房上移至二楼,将原有的厨房餐厅空间,改为早餐水吧区及楼梯区,客厅和玄关、水吧区的敞开规划设计­,清贵尔雅,富贵自华。



二层:改变原有楼梯位置,将休闲区、餐厅、厨房、洗衣间、卫生间等区域重新进行规划设计,每个空间比例协调,增强了采光及流动顺畅性。原有露台进行搭建做多功能活动空间,延展出连接洗衣房及浴室,优化使用及采光通风。



02 空间效果


客厅:以“生活与艺术”为中心,纹理精致的大理石背景墙,耐看不过时,灵动有趣的挂饰及吹泡泡的少女,让空间可以自己生长,自己进化,并有多元化的可能性。以亮丽的奶油灰为主色调,突出空间的开阔、通透,PU石膏线条及艺术涂料的大量运用,配合简约现代的家具,更加和谐美观,低调奢华、优雅时尚。



水吧区以“情调”为中心,兼顾早餐区作用,弥补收纳空间的不足;同时扩大操作台面积,满足一家人不同的烹饪需求。打造时尚金属玄关隔断,杏色储物柜搭配哑光铜条最显气质,营造规整的空间感; 下方设置感应灯、让业主感受到回家的温暖;兼具逼格和颜值,同时保证两个空间的隐私性。



楼梯空间:以“仪式”为中心,楼梯旁让出窗帘空间,富有仪式感的楼梯,喝喝茶,聊聊天,听着小公主美妙的钢琴声,彷如殿堂,仪式感油然而生。



主卧室:以“温馨、质感”为中心,杏色的点缀衬得空间优雅生动,香槟金色的线条造型墙板让视觉上更具有层次感。不同的角色,不同的生活状态,让我们对家的要求越来越多变。然而富有情趣的生活,却能从简单的氛围里提炼出源源不断的新鲜感。



女儿房:以“公主”为中心,从入户就已经开始富有仪式感,衣帽间的打造,足以收纳小朋友的各种衣物、书籍、玩具,公主的气质与优雅在潜移默化中培育。



北卧:作为过渡空间出现,孩童时期上下床永远是兼顾休息和娱乐的家具,呵护孩子的童年。在一个温馨浪漫的空间学习,成长的快乐伴随左右。



主卫:以“永恒”为中心,优雅的搭配恒久的黑,画龙点睛的黄铜金属件,让复古和现代融为一体。干白色云石墙砖防霉耐用易擦洗,岩石质感地砖细腻的纹理也非常有质感。



女儿房卫生间:延续“公主”的气质,白净墙地面配合水磨石的点缀,优雅的浴室柜彷如公主的梳妆台,精致细腻。



二层开放式餐厅:以“现代”为中心,格外宽敞大气;高雅美观的石材餐桌、光滑有质感,舒适的皮质餐椅,尽显美式轻奢的优雅气质。



二层休闲区:在这一方空间里,任周边熙攘;你也可以保持冷静与理性,更加自由澄澈。除了基本的起居机能外,精致而清透的吊灯衬托出高雅、质感氛围,而一旁的休闲椅,显得精致可爱又具实用性,为空间加分!



二层榻榻米房间:以“稳重“为中心,精选高品质的木作材质增强空间的品质感;艺术装饰画、形态优雅的花艺给予了空间的艺术性。



二层多功能游戏区:为主人预留自由发挥的空间,软膜的应用,不仅美观,更为这个空间增添了光亮及探索的窗口。



二层浴室:空间以“自然“为中心,具有和谐的外观,让室内外的所有屏障遁隐,在浴室中亦可感受大自然的美妙风情。为用户提供身心放松、焕发活力的小天地。平滑纤薄的盆壁,家具材质与流线型一体式浴缸的美妙融合,更添恒久的摩登气息。



法式新主张,浪漫而不繁琐,彰显个性与气质,让居住的人,感受到家带来的美好……



标签

最近浏览:

全国咨询热线

0535-6760066

备案号:鲁ICP备17048446号-1